0
Prix en baisse
découvrir le bien
2 Pièce(s)
1 Chambre(s)

Annecy Vieille Ville - Coup de cœur pour ce loft de 62 m²

Annecy (74000)
Réf : FF185

Annecy – Le charme perché au sommet

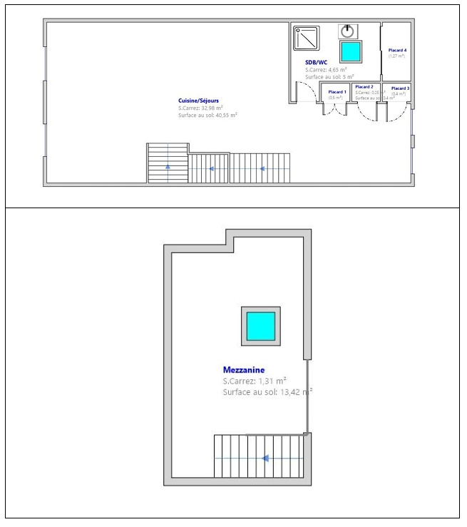
Coup de cœur garanti pour ce loft atypique de 62 m² (40 m² pondérés), perché au 3ᵉ et dernier étage d’une résidence sans ascenseur – l’occasion rêvée de faire du sport sans abonnement. Situé dans une rue piétonne pleine de cachet, au cœur des vieux quartiers d’Annecy, ce T2 façon loft a tout pour plaire.

À découvrir sans tarder :

  • Un salon-séjour lumineux pour vos soirées cocooning ou vos apéros improvisés

  • Une cuisine ouverte et équipée, prête à accueillir vos meilleures recettes (ou vos plats à emporter)

  • Une chambre en mezzanine, parfaite pour rêver de vos prochaines balades au bord du lac

  • Une salle d’eau moderne et un WC, parce que le confort, c’est aussi dans les détails

Localisation premium : à deux pas du lac, des commerces, des restaurants et de l’ambiance unique du centre historique. Ici, tout se fait à pied, sauf l’ascension vers votre nouveau nid.

Rénovation haut de gamme, matériaux de qualité, aucun travaux à prévoir. Vous posez vos valises, et c’est parti.

Investisseurs, ouvrez l’œil : rendement locatif au top avec 80 à 85 % de taux de remplissage en location courte durée. Un vrai petit bijou pour faire fructifier votre patrimoine.

Ce loft ne restera pas longtemps sur le marché. À visiter avant qu’il ne file entre deux locations.


Les informations sur les risques auxquels ce bien est exposé sont disponibles sur le site Géorisques
Ce bien vous intéresse ?
Fieldset par défaut
Fieldset par défaut
Validation

* Champs obligatoires

Contacter l'agence
Validation
Les informations recueillies sur ce formulaire sont enregistrées dans un fichier informatisé par La Boite Immo agissant comme Sous-traitant du traitement pour la gestion de la clientèle/prospects de l'Agence / du Réseau qui reste Responsable du Traitement de vos Données personnelles.
La base légale du traitement repose sur l’intérêt légitime de l'Agence / du Réseau.
Elles sont conservées jusqu'à demande de suppression et sont destinées à l'Agence / au Réseau.
Conformément à la loi « informatique et libertés », vous pouvez exercer votre droit d'accès aux données vous concernant et les faire rectifier en contactant l'Agence / le Réseau.
Si vous estimez, après avoir contacté l'Agence / le Réseau, que vos droits « Informatique et Libertés » ne sont pas respectés, vous pouvez adresser une réclamation à la CNIL.
Nous vous informons de l’existence de la liste d'opposition au démarchage téléphonique « Bloctel », sur laquelle vous pouvez vous inscrire ici : https://www.bloctel.gouv.fr 
Dans le cadre de la protection des Données personnelles, nous vous invitons à ne pas inscrire de Données sensibles dans le champ de saisie libre
Ce site est protégé par reCAPTCHA, les Politiques de Confidentialité et les Conditions d'Utilisation de Google s'appliquent.

En Bref

Code postal 74000
Surface habitable (m²) 50 m²
Surface loi Carrez (m²) 39,75 m²
Nombre de chambre(s) 1
Nombre de pièces 2
Etage 3
Nombre de niveaux 2
Vue Vieux quartiers
Nb de salle d'eau 1
Cuisine Américaine
Type de cuisine Equipée
Mode de chauffage Electrique
Type de chauffage Radiateur
Format de chauffage Individuel
Balcon NON
Terrasse NON
Cave NON
Année de construction 1900

Infos financières

Prix de vente 420 000 €
Les honoraires d'agence seront intégralement à la charge du vendeur  
Charges 100 €
Taxe foncière annuelle 490 €

Energie

Energie
DPE
GES